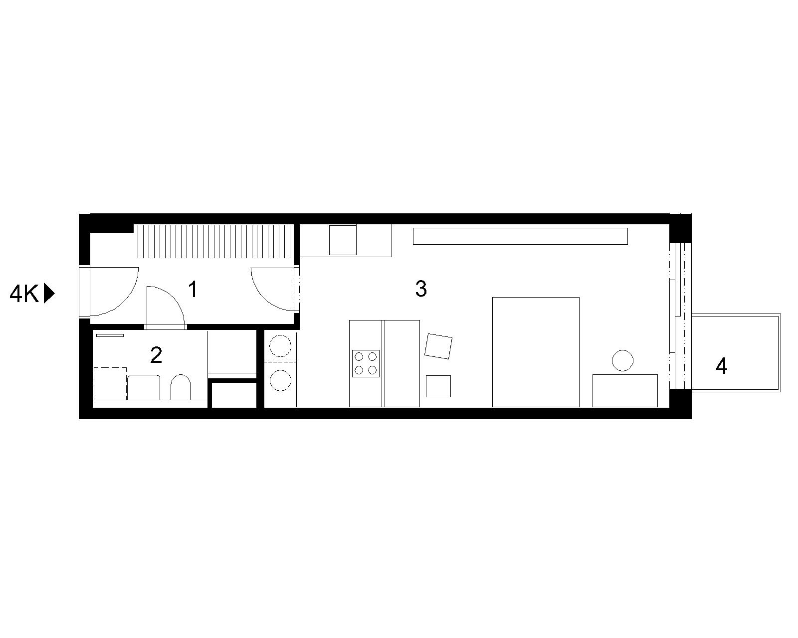
4K
Situace
Patro
Plán podlaží
Využijte bezplatné služby našich interních finančních specialistů. Vyřídíte vše na jednom místě. Bez starostí.
Rádi vám pomůžeme s financováním vašeho vysněného bytu nebo zhodnotíme doplatek kupní ceny než dojde ke kolaudaci.
Nezávislé poradenství
Kromě standardních realitních služeb poskytujeme také ucelenou nabídku všech dostupných hypotečních a úvěrových produktů na trhu. Naši poradci jsou zcela nezávislí na konkrétních finančních institucích. To nám umožňuje najít optimální způsob financování podle vašich potřeb.
Komplexní servis
Vyřešíme s vámi prodej starého bytu, pomůžeme s profinancováním první splátky, najdeme nejvýhodnější hypotéku na trhu a zajistíme exkluzivní podmínky pojištění. Vše na jednom místě, bez zbytečného papírování a starostí.
Koupě bytu bez rizika
Pokud pro vás zabezpečujeme financování, v průběhu schvalování hypotéky vám držíme předběžnou rezervaci bytu bez nutnosti skládat rezervační poplatek. Nemusíte tak mít obavy, že o rezervaci přijdete, když proces přesáhne stanovenou lhůtu.
15 %
Na nový byt vám stačí pouze 15 % vlastních zdrojů (10 % u mladších 36 let), zbytek kupní ceny platíte až po dokončení projektu. Námi sjednaná smluvní banka vám navíc v mezidobí garantuje podmínky hypotéky schválené v okamžiku podpisu rezervační smlouvy. Pokud by před dokončením projektu úrokové sazby klesly, zabezpečíme přeschválení za výhodnějších podmínek.
-
Nabízíme zvýhodněné předsjednané nabídky hypotečních balíčků
Na míru konkrétnímu projektu jsme připravili atraktivní nabídku zvýhodněných hypotečních balíčků se sníženou úrokovou sazbou a mnoha bonusy navíc.
Více informací vám sdělí naši obchodní zástupci.
*Zvýhodnění úroková sazba oproti aktuální standardní sazbě.
-
Hypoteční kalkulačka
Možnosti financování
*Maximální výše úvěru 85% (90 % u mladších 36 let)NeAno
4,59%
5,04%4,89%4,79%- Měsíční splátka
*Údaje této kalkulace mají informativní charakter.
Pro podrobnější informace, prosím, kontaktujte našeho hypotečního specialistu.
Našim klientům nabízíme prémiové podmínky pojištění
Vždy něco navíc
Snažíme se nabídnout vždy něco navíc. Pro naše klienty máme vyjednané exkluzivní podmínky pojištění bytu, domácnosti, odpovědnosti.
Přehled jednotek a ceník
|
Číslo
|
Typ
|
Podlaží
|
Dispozice
|
Orientace
|
Plocha jednotky
|
Lodžie/Terasa
|
Celková prodejní plocha
|
Cena vč. DPH
|
|
|---|---|---|---|---|---|---|---|---|---|
| 2E | Studio | 2.NP | 1+kk | Z | 37,4 m² | 2,86 m² / - | 40,2 m² | 5510000 Kč | Karta bytu |
| 2F | Studio | 2.NP | 1+kk | Z | 37,4 m² | 2,86 m² / - | 40,2 m² | 5510000 Kč | Karta bytu |
| 2G | Studio | 2.NP | 2+kk | Z | 55,3 m² | 5,51 m² / - | 60,8 m² | 7885000 Kč | Karta bytu |
| 2H | Byt | 2.NP | 2+kk | V | 59,1 m² | - / - | 81,4 m² | 8505000 Kč | Karta bytu |
| 2R | Studio | 2.NP | 2+KK | Z | 48,4 m² | - / - | 72,3 m² | 6895000 Kč | Karta bytu |
| 3A | Byt | 3.NP | 3+kk | Z | 66,1 m² | 8,19 m² / - | 74,3 m² | 9750000 Kč | Karta bytu |
| 3B | Byt | 3.NP | 1+kk | Z | 37,4 m² | 2,86 m² / - | 40,2 m² | 5690000 Kč | Karta bytu |
| 3E | Byt | 3.NP | 1+kk | Z | 37,4 m² | 2,86 m² / - | 40,2 m² | 5690000 Kč | Karta bytu |
| 3G | Byt | 3.NP | 2+kk | Z | 55,3 m² | 5,51 m² / - | 60,8 m² | 8220000 Kč | Karta bytu |
| 3H | Byt | 3.NP | 2+kk | V | 59,1 m² | 4,14 m² / - | 63,2 m² | 8785000 Kč | Karta bytu |
| 3P | Byt | 3.NP | 2+KK | V | 61,0 m² | 4,14 m² / - | 65,1 m² | 9065000 Kč | Karta bytu |
| 3R | Studio | 3.NP | 2+KK | Z | 48,4 m² | - / - | 48,4 m² | 7125000 Kč | Karta bytu |
| 3S | Byt | 3.NP | 2+KK | Z | 48,4 m² | - / - | 48,4 m² | 7195000 Kč | Karta bytu |
| 4A | Byt | 4.NP | 3+kk | Z | 67,8 m² | 8,19 m² / - | 75,9 m² | 10230000 Kč | Karta bytu |
| 4B | Byt | 4.NP | 1+kk | Z | 37,9 m² | 2,86 m² / - | 40,8 m² | 5910000 Kč | Karta bytu |
| 4C | Byt | 4.NP | 1+kk | Z | 37,9 m² | 2,86 m² / - | 40,8 m² | 5910000 Kč | Karta bytu |
| 4F | Byt | 4.NP | 1+kk | Z | 37,9 m² | 2,86 m² / - | 40,8 m² | 5910000 Kč | Karta bytu |
| 4G | Byt | 4.NP | 2+kk | Z | 57,0 m² | 5,51 m² / - | 62,5 m² | 8670000 Kč | Karta bytu |
| 4N | Byt | 4.NP | 1+kk | V | 36,0 m² | 2,43 m² / - | 38,4 m² | 5615000 Kč | Karta bytu |
| 4P | Byt | 4.NP | 2+KK | V | 62,6 m² | 4,14 m² / - | 66,7 m² | 9520000 Kč | Karta bytu |
| 4R | Studio | 4.NP | 2+KK | Z | 48,4 m² | - / - | 48,4 m² | 7300000 Kč | Karta bytu |
| 4S | Byt | 4.NP | 2+KK | Z | 48,4 m² | - / - | 48,4 m² | 7365000 Kč | Karta bytu |
| 5A | Byt | 5.NP | 3+kk | Z | 67,8 m² | 8,19 m² / - | 75,9 m² | 10480000 Kč | Karta bytu |
| 5B | Byt | 5.NP | 1+kk | Z | 37,9 m² | 2,86 m² / - | 40,8 m² | 6050000 Kč | Karta bytu |
| 5C | Byt | 5.NP | 1+kk | Z | 37,9 m² | 2,86 m² / - | 40,8 m² | 6050000 Kč | Karta bytu |
| 5D | Byt | 5.NP | 1+kk | Z | 37,9 m² | 2,86 m² / - | 40,8 m² | 6050000 Kč | Karta bytu |
| 5F | Byt | 5.NP | 1+kk | Z | 37,9 m² | 2,86 m² / - | 40,8 m² | 6050000 Kč | Karta bytu |
| 5G | Byt | 5.NP | 2+kk | Z | 57,0 m² | 5,51 m² / - | 62,5 m² | 8875000 Kč | Karta bytu |
| 5H | Byt | 5.NP | 3+KK | V | 60,7 m² | 4,14 m² / - | 64,8 m² | 9385000 Kč | Karta bytu |
| 5L | Byt | 5.NP | 1+kk | V | 36,0 m² | 4,86 m² / - | 40,9 m² | 5745000 Kč | Karta bytu |
| 6A | Byt | 6.NP | 3+kk | Z | 67,8 m² | 8,19 m² / - | 75,9 m² | 10720000 Kč | Karta bytu |
| 6E | Byt | 6.NP | 1+kk | Z | 37,9 m² | 2,86 m² / - | 40,8 m² | 6090000 Kč | Karta bytu |
| 6L | Byt | 6.NP | 1+kk | V | 36,0 m² | 4,86 m² / - | 40,9 m² | 5785000 Kč | Karta bytu |
| 6N | Byt | 6.NP | 1+kk | V | 36,0 m² | 4,86 m² / - | 40,9 m² | 5785000 Kč | Karta bytu |
| 6P | Byt | 6.NP | 2+KK | V | 62,6 m² | 4,14 m² / - | 66,7 m² | 9970000 Kč | Karta bytu |
| 7A | Byt | 7.NP | 3+kk | Z | 67,8 m² | 8,19 m² / - | 75,9 m² | 10965000 Kč | Karta bytu |
| 7C | Byt | 7.NP | 2+kk | Z | 76,2 m² | 2,86 m² + 2,86 m² / - | 81,9 m² | 11875000 Kč | Karta bytu |
| 7E | Byt | 7.NP | 2+kk | Z | 57,0 m² | 5,51 m² / - | 62,5 m² | 9285000 Kč | Karta bytu |
| 7F | Byt | 7.NP | 3+KK | V | 60,7 m² | 4,14 m² / - | 64,8 m² | 9825000 Kč | Karta bytu |
| 7G | Byt | 7.NP | 2+kk | V | 72,4 m² | 4,86 m² + 4,86 m² / - | 82,1 m² | 11280000 Kč | Karta bytu |
| 7H | Byt | 7.NP | 2+kk | V | 72,4 m² | 4,86 m² + 4,86 m² / - | 82,1 m² | 11275000 Kč | Karta bytu |
| 8A | Byt | 8.NP | 3+1 | Z | 98,7 m² | - / - 29,39 m² | 128,0 m² | 16555000 Kč | Karta bytu |
| 8E | Byt | 8.NP | 3+KK | V | 95,9 m² | - / - 12,30 m² | 108,2 m² | 15750000 Kč | Karta bytu |
| 8F | Byt | 8.NP | 3+1 | V | 96,5 m² | - / - 12,30 m² | 108,8 m² | 16190000 Kč | Karta bytu |
| 2A | Byt | 2.NP | 3+kk | Z | 66,1 m² | 8,19 m² / - | 74,3 m² | Rezervováno | Karta bytu |
| 2B | Byt | 2.NP | 1+kk | Z | 37,4 m² | 2,86 m² / - | 40,2 m² | Rezervováno | Karta bytu |
| 2C | Byt | 2.NP | 1+kk | Z | 37,4 m² | 2,86 m² / - | 40,2 m² | Rezervováno | Karta bytu |
| 2D | Studio | 2.NP | 1+kk | Z | 36,8 m² | 2,86 m² / - | 39,7 m² | Rezervováno | Karta bytu |
| 2J | Byt | 2.NP | 1+kk | V | 35,5 m² | - / - | 49,5 m² | Rezervováno | Karta bytu |
| 2K | Byt | 2.NP | 1+kk | V | 35,5 m² | - / - | 49,5 m² | Rezervováno | Karta bytu |
| 2L | Byt | 2.NP | 1+kk | V | 34,9 m² | - / - | 48,9 m² | Rezervováno | Karta bytu |
| 2M | Byt | 2.NP | 1+kk | V | 35,5 m² | - / - | 51,9 m² | Rezervováno | Karta bytu |
| 2P | Byt | 2.NP | 2+KK | V | 61,0 m² | - / - | 87,2 m² | Rezervováno | Karta bytu |
| 2S | Byt | 2.NP | 2+KK | Z | 48,4 m² | - / - | 73,2 m² | Rezervováno | Karta bytu |
| 3C | Byt | 3.NP | 1+kk | Z | 37,4 m² | 2,86 m² / - | 40,2 m² | Rezervováno | Karta bytu |
| 3D | Byt | 3.NP | 1+kk | Z | 36,8 m² | 2,86 m² / - | 39,7 m² | Rezervováno | Karta bytu |
| 3F | Byt | 3.NP | 1+kk | Z | 37,4 m² | 2,86 m² / - | 40,2 m² | Rezervováno | Karta bytu |
| 3J | Byt | 3.NP | 1+kk | V | 35,5 m² | 2,43 m² / - | 37,9 m² | Rezervováno | Karta bytu |
| 3K | Byt | 3.NP | 1+kk | V | 35,5 m² | 2,43 m² / - | 37,9 m² | Rezervováno | Karta bytu |
| 3L | Byt | 3.NP | 1+kk | V | 34,9 m² | 2,43 m² / - | 37,4 m² | Rezervováno | Karta bytu |
| 3M | Byt | 3.NP | 1+kk | V | 35,5 m² | 2,43 m² / - | 37,9 m² | Rezervováno | Karta bytu |
| 3N | Byt | 3.NP | 1+kk | V | 35,5 m² | 2,43 m² / - | 37,9 m² | Rezervováno | Karta bytu |
| 4D | Byt | 4.NP | 1+kk | Z | 37,9 m² | 2,86 m² / - | 40,8 m² | Rezervováno | Karta bytu |
| 4E | Byt | 4.NP | 1+kk | Z | 37,9 m² | 2,86 m² / - | 40,8 m² | Rezervováno | Karta bytu |
| 4H | Byt | 4.NP | 3+KK | V | 60,7 m² | 4,14 m² / - | 64,8 m² | Rezervováno | Karta bytu |
| 4J | Byt | 4.NP | 1+kk | V | 36,0 m² | 2,43 m² / - | 38,4 m² | Rezervováno | Karta bytu |
| 4K | Byt | 4.NP | 1+kk | V | 36,0 m² | 2,43 m² / - | 38,4 m² | Rezervováno | Karta bytu |
| 4L | Byt | 4.NP | 1+kk | V | 36,0 m² | 2,43 m² / - | 38,4 m² | Rezervováno | Karta bytu |
| 4M | Byt | 4.NP | 1+kk | V | 36,0 m² | 2,43 m² / - | 38,4 m² | Rezervováno | Karta bytu |
| 5E | Byt | 5.NP | 1+kk | Z | 37,9 m² | 2,86 m² / - | 40,8 m² | Rezervováno | Karta bytu |
| 5J | Byt | 5.NP | 1+kk | V | 36,0 m² | 4,86 m² / - | 40,9 m² | Rezervováno | Karta bytu |
| 5K | Byt | 5.NP | 1+kk | V | 36,0 m² | 4,86 m² / - | 40,9 m² | Rezervováno | Karta bytu |
| 5M | Byt | 5.NP | 1+kk | V | 36,0 m² | 4,86 m² / - | 40,9 m² | Rezervováno | Karta bytu |
| 5N | Byt | 5.NP | 1+kk | V | 36,0 m² | 4,86 m² / - | 40,9 m² | Rezervováno | Karta bytu |
| 5P | Byt | 5.NP | 2+KK | V | 62,6 m² | 4,14 m² / - | 66,7 m² | Rezervováno | Karta bytu |
| 6B | Byt | 6.NP | 1+kk | Z | 37,9 m² | 2,86 m² / - | 40,8 m² | Rezervováno | Karta bytu |
| 6C | Byt | 6.NP | 1+kk | Z | 37,9 m² | 2,86 m² / - | 40,8 m² | Rezervováno | Karta bytu |
| 6D | Byt | 6.NP | 1+kk | Z | 37,9 m² | 2,86 m² / - | 40,8 m² | Rezervováno | Karta bytu |
| 6F | Byt | 6.NP | 1+kk | Z | 37,9 m² | 2,86 m² / - | 40,8 m² | Rezervováno | Karta bytu |
| 6G | Byt | 6.NP | 2+kk | Z | 57,0 m² | 5,51 m² / - | 62,5 m² | Rezervováno | Karta bytu |
| 6H | Byt | 6.NP | 3+KK | V | 60,7 m² | 4,14 m² / - | 64,8 m² | Rezervováno | Karta bytu |
| 6J | Byt | 6.NP | 1+kk | V | 36,0 m² | 4,86 m² / - | 40,9 m² | Rezervováno | Karta bytu |
| 6K | Byt | 6.NP | 1+kk | V | 36,0 m² | 4,86 m² / - | 40,9 m² | Rezervováno | Karta bytu |
| 6M | Byt | 6.NP | 1+kk | V | 36,0 m² | 4,86 m² / - | 40,9 m² | Rezervováno | Karta bytu |
| 7B | Byt | 7.NP | 2+kk | Z | 76,2 m² | 2,86 m² + 2,86 m² / - | 81,9 m² | Rezervováno | Karta bytu |
| 7D | Byt | 7.NP | 1+kk | Z | 37,9 m² | 2,86 m² / - | 40,8 m² | Rezervováno | Karta bytu |
| 7J | Byt | 7.NP | 1+kk | V | 36,0 m² | 4,86 m² / - | 40,9 m² | Rezervováno | Karta bytu |
| 7K | Byt | 7.NP | 2+KK | V | 62,6 m² | 4,14 m² / - | 66,7 m² | Rezervováno | Karta bytu |
| 8B | Byt | 8.NP | 3+KK | Z | 91,8 m² | - / - 30,53 m² | 122,4 m² | Rezervováno | Karta bytu |
| 8C | Byt | 8.NP | 3+1 | Z | 88,5 m² | - / - 25,99 m² | 114,5 m² | Rezervováno | Karta bytu |
| 8D | Byt | 8.NP | 3+1 | V | 98,0 m² | - / - 12,30 m² | 110,2 m² | Rezervováno | Karta bytu |
|
Číslo
|
Typ
|
Podlaží
|
Dispozice
|
Orientace
|
Plocha jednotky
|
Lodžie/Terasa
|
Celková prodejní plocha
|
Cena vč. DPH
|
|
|---|---|---|---|---|---|---|---|---|---|
| 2E | Studio | 2.NP | 1+kk | Z | 37,4 m² | 2,86 m² / - | 40,2 m² | 5510000 Kč | Karta bytu |
| 2F | Studio | 2.NP | 1+kk | Z | 37,4 m² | 2,86 m² / - | 40,2 m² | 5510000 Kč | Karta bytu |
| 2G | Studio | 2.NP | 2+kk | Z | 55,3 m² | 5,51 m² / - | 60,8 m² | 7885000 Kč | Karta bytu |
| 2H | Byt | 2.NP | 2+kk | V | 59,1 m² | - / - | 81,4 m² | 8505000 Kč | Karta bytu |
| 2R | Studio | 2.NP | 2+KK | Z | 48,4 m² | - / - | 72,3 m² | 6895000 Kč | Karta bytu |
| 2A | Byt | 2.NP | 3+kk | Z | 66,1 m² | 8,19 m² / - | 74,3 m² | Rezervováno | Karta bytu |
| 2B | Byt | 2.NP | 1+kk | Z | 37,4 m² | 2,86 m² / - | 40,2 m² | Rezervováno | Karta bytu |
| 2C | Byt | 2.NP | 1+kk | Z | 37,4 m² | 2,86 m² / - | 40,2 m² | Rezervováno | Karta bytu |
| 2D | Studio | 2.NP | 1+kk | Z | 36,8 m² | 2,86 m² / - | 39,7 m² | Rezervováno | Karta bytu |
| 2J | Byt | 2.NP | 1+kk | V | 35,5 m² | - / - | 49,5 m² | Rezervováno | Karta bytu |
| 2K | Byt | 2.NP | 1+kk | V | 35,5 m² | - / - | 49,5 m² | Rezervováno | Karta bytu |
| 2L | Byt | 2.NP | 1+kk | V | 34,9 m² | - / - | 48,9 m² | Rezervováno | Karta bytu |
| 2M | Byt | 2.NP | 1+kk | V | 35,5 m² | - / - | 51,9 m² | Rezervováno | Karta bytu |
| 2P | Byt | 2.NP | 2+KK | V | 61,0 m² | - / - | 87,2 m² | Rezervováno | Karta bytu |
| 2S | Byt | 2.NP | 2+KK | Z | 48,4 m² | - / - | 73,2 m² | Rezervováno | Karta bytu |
|
Číslo
|
Typ
|
Podlaží
|
Dispozice
|
Orientace
|
Plocha jednotky
|
Lodžie/Terasa
|
Celková prodejní plocha
|
Cena vč. DPH
|
|
|---|---|---|---|---|---|---|---|---|---|
| 3A | Byt | 3.NP | 3+kk | Z | 66,1 m² | 8,19 m² / - | 74,3 m² | 9750000 Kč | Karta bytu |
| 3B | Byt | 3.NP | 1+kk | Z | 37,4 m² | 2,86 m² / - | 40,2 m² | 5690000 Kč | Karta bytu |
| 3E | Byt | 3.NP | 1+kk | Z | 37,4 m² | 2,86 m² / - | 40,2 m² | 5690000 Kč | Karta bytu |
| 3G | Byt | 3.NP | 2+kk | Z | 55,3 m² | 5,51 m² / - | 60,8 m² | 8220000 Kč | Karta bytu |
| 3H | Byt | 3.NP | 2+kk | V | 59,1 m² | 4,14 m² / - | 63,2 m² | 8785000 Kč | Karta bytu |
| 3P | Byt | 3.NP | 2+KK | V | 61,0 m² | 4,14 m² / - | 65,1 m² | 9065000 Kč | Karta bytu |
| 3R | Studio | 3.NP | 2+KK | Z | 48,4 m² | - / - | 48,4 m² | 7125000 Kč | Karta bytu |
| 3S | Byt | 3.NP | 2+KK | Z | 48,4 m² | - / - | 48,4 m² | 7195000 Kč | Karta bytu |
| 3C | Byt | 3.NP | 1+kk | Z | 37,4 m² | 2,86 m² / - | 40,2 m² | Rezervováno | Karta bytu |
| 3D | Byt | 3.NP | 1+kk | Z | 36,8 m² | 2,86 m² / - | 39,7 m² | Rezervováno | Karta bytu |
| 3F | Byt | 3.NP | 1+kk | Z | 37,4 m² | 2,86 m² / - | 40,2 m² | Rezervováno | Karta bytu |
| 3J | Byt | 3.NP | 1+kk | V | 35,5 m² | 2,43 m² / - | 37,9 m² | Rezervováno | Karta bytu |
| 3K | Byt | 3.NP | 1+kk | V | 35,5 m² | 2,43 m² / - | 37,9 m² | Rezervováno | Karta bytu |
| 3L | Byt | 3.NP | 1+kk | V | 34,9 m² | 2,43 m² / - | 37,4 m² | Rezervováno | Karta bytu |
| 3M | Byt | 3.NP | 1+kk | V | 35,5 m² | 2,43 m² / - | 37,9 m² | Rezervováno | Karta bytu |
| 3N | Byt | 3.NP | 1+kk | V | 35,5 m² | 2,43 m² / - | 37,9 m² | Rezervováno | Karta bytu |
|
Číslo
|
Typ
|
Podlaží
|
Dispozice
|
Orientace
|
Plocha jednotky
|
Lodžie/Terasa
|
Celková prodejní plocha
|
Cena vč. DPH
|
|
|---|---|---|---|---|---|---|---|---|---|
| 4A | Byt | 4.NP | 3+kk | Z | 67,8 m² | 8,19 m² / - | 75,9 m² | 10230000 Kč | Karta bytu |
| 4B | Byt | 4.NP | 1+kk | Z | 37,9 m² | 2,86 m² / - | 40,8 m² | 5910000 Kč | Karta bytu |
| 4C | Byt | 4.NP | 1+kk | Z | 37,9 m² | 2,86 m² / - | 40,8 m² | 5910000 Kč | Karta bytu |
| 4F | Byt | 4.NP | 1+kk | Z | 37,9 m² | 2,86 m² / - | 40,8 m² | 5910000 Kč | Karta bytu |
| 4G | Byt | 4.NP | 2+kk | Z | 57,0 m² | 5,51 m² / - | 62,5 m² | 8670000 Kč | Karta bytu |
| 4N | Byt | 4.NP | 1+kk | V | 36,0 m² | 2,43 m² / - | 38,4 m² | 5615000 Kč | Karta bytu |
| 4P | Byt | 4.NP | 2+KK | V | 62,6 m² | 4,14 m² / - | 66,7 m² | 9520000 Kč | Karta bytu |
| 4R | Studio | 4.NP | 2+KK | Z | 48,4 m² | - / - | 48,4 m² | 7300000 Kč | Karta bytu |
| 4S | Byt | 4.NP | 2+KK | Z | 48,4 m² | - / - | 48,4 m² | 7365000 Kč | Karta bytu |
| 4D | Byt | 4.NP | 1+kk | Z | 37,9 m² | 2,86 m² / - | 40,8 m² | Rezervováno | Karta bytu |
| 4E | Byt | 4.NP | 1+kk | Z | 37,9 m² | 2,86 m² / - | 40,8 m² | Rezervováno | Karta bytu |
| 4H | Byt | 4.NP | 3+KK | V | 60,7 m² | 4,14 m² / - | 64,8 m² | Rezervováno | Karta bytu |
| 4J | Byt | 4.NP | 1+kk | V | 36,0 m² | 2,43 m² / - | 38,4 m² | Rezervováno | Karta bytu |
| 4K | Byt | 4.NP | 1+kk | V | 36,0 m² | 2,43 m² / - | 38,4 m² | Rezervováno | Karta bytu |
| 4L | Byt | 4.NP | 1+kk | V | 36,0 m² | 2,43 m² / - | 38,4 m² | Rezervováno | Karta bytu |
| 4M | Byt | 4.NP | 1+kk | V | 36,0 m² | 2,43 m² / - | 38,4 m² | Rezervováno | Karta bytu |
|
Číslo
|
Typ
|
Podlaží
|
Dispozice
|
Orientace
|
Plocha jednotky
|
Lodžie/Terasa
|
Celková prodejní plocha
|
Cena vč. DPH
|
|
|---|---|---|---|---|---|---|---|---|---|
| 5A | Byt | 5.NP | 3+kk | Z | 67,8 m² | 8,19 m² / - | 75,9 m² | 10480000 Kč | Karta bytu |
| 5B | Byt | 5.NP | 1+kk | Z | 37,9 m² | 2,86 m² / - | 40,8 m² | 6050000 Kč | Karta bytu |
| 5C | Byt | 5.NP | 1+kk | Z | 37,9 m² | 2,86 m² / - | 40,8 m² | 6050000 Kč | Karta bytu |
| 5D | Byt | 5.NP | 1+kk | Z | 37,9 m² | 2,86 m² / - | 40,8 m² | 6050000 Kč | Karta bytu |
| 5F | Byt | 5.NP | 1+kk | Z | 37,9 m² | 2,86 m² / - | 40,8 m² | 6050000 Kč | Karta bytu |
| 5G | Byt | 5.NP | 2+kk | Z | 57,0 m² | 5,51 m² / - | 62,5 m² | 8875000 Kč | Karta bytu |
| 5H | Byt | 5.NP | 3+KK | V | 60,7 m² | 4,14 m² / - | 64,8 m² | 9385000 Kč | Karta bytu |
| 5L | Byt | 5.NP | 1+kk | V | 36,0 m² | 4,86 m² / - | 40,9 m² | 5745000 Kč | Karta bytu |
| 5E | Byt | 5.NP | 1+kk | Z | 37,9 m² | 2,86 m² / - | 40,8 m² | Rezervováno | Karta bytu |
| 5J | Byt | 5.NP | 1+kk | V | 36,0 m² | 4,86 m² / - | 40,9 m² | Rezervováno | Karta bytu |
| 5K | Byt | 5.NP | 1+kk | V | 36,0 m² | 4,86 m² / - | 40,9 m² | Rezervováno | Karta bytu |
| 5M | Byt | 5.NP | 1+kk | V | 36,0 m² | 4,86 m² / - | 40,9 m² | Rezervováno | Karta bytu |
| 5N | Byt | 5.NP | 1+kk | V | 36,0 m² | 4,86 m² / - | 40,9 m² | Rezervováno | Karta bytu |
| 5P | Byt | 5.NP | 2+KK | V | 62,6 m² | 4,14 m² / - | 66,7 m² | Rezervováno | Karta bytu |
|
Číslo
|
Typ
|
Podlaží
|
Dispozice
|
Orientace
|
Plocha jednotky
|
Lodžie/Terasa
|
Celková prodejní plocha
|
Cena vč. DPH
|
|
|---|---|---|---|---|---|---|---|---|---|
| 6A | Byt | 6.NP | 3+kk | Z | 67,8 m² | 8,19 m² / - | 75,9 m² | 10720000 Kč | Karta bytu |
| 6E | Byt | 6.NP | 1+kk | Z | 37,9 m² | 2,86 m² / - | 40,8 m² | 6090000 Kč | Karta bytu |
| 6L | Byt | 6.NP | 1+kk | V | 36,0 m² | 4,86 m² / - | 40,9 m² | 5785000 Kč | Karta bytu |
| 6N | Byt | 6.NP | 1+kk | V | 36,0 m² | 4,86 m² / - | 40,9 m² | 5785000 Kč | Karta bytu |
| 6P | Byt | 6.NP | 2+KK | V | 62,6 m² | 4,14 m² / - | 66,7 m² | 9970000 Kč | Karta bytu |
| 6B | Byt | 6.NP | 1+kk | Z | 37,9 m² | 2,86 m² / - | 40,8 m² | Rezervováno | Karta bytu |
| 6C | Byt | 6.NP | 1+kk | Z | 37,9 m² | 2,86 m² / - | 40,8 m² | Rezervováno | Karta bytu |
| 6D | Byt | 6.NP | 1+kk | Z | 37,9 m² | 2,86 m² / - | 40,8 m² | Rezervováno | Karta bytu |
| 6F | Byt | 6.NP | 1+kk | Z | 37,9 m² | 2,86 m² / - | 40,8 m² | Rezervováno | Karta bytu |
| 6G | Byt | 6.NP | 2+kk | Z | 57,0 m² | 5,51 m² / - | 62,5 m² | Rezervováno | Karta bytu |
| 6H | Byt | 6.NP | 3+KK | V | 60,7 m² | 4,14 m² / - | 64,8 m² | Rezervováno | Karta bytu |
| 6J | Byt | 6.NP | 1+kk | V | 36,0 m² | 4,86 m² / - | 40,9 m² | Rezervováno | Karta bytu |
| 6K | Byt | 6.NP | 1+kk | V | 36,0 m² | 4,86 m² / - | 40,9 m² | Rezervováno | Karta bytu |
| 6M | Byt | 6.NP | 1+kk | V | 36,0 m² | 4,86 m² / - | 40,9 m² | Rezervováno | Karta bytu |
|
Číslo
|
Typ
|
Podlaží
|
Dispozice
|
Orientace
|
Plocha jednotky
|
Lodžie/Terasa
|
Celková prodejní plocha
|
Cena vč. DPH
|
|
|---|---|---|---|---|---|---|---|---|---|
| 7A | Byt | 7.NP | 3+kk | Z | 67,8 m² | 8,19 m² / - | 75,9 m² | 10965000 Kč | Karta bytu |
| 7C | Byt | 7.NP | 2+kk | Z | 76,2 m² | 2,86 m² + 2,86 m² / - | 81,9 m² | 11875000 Kč | Karta bytu |
| 7E | Byt | 7.NP | 2+kk | Z | 57,0 m² | 5,51 m² / - | 62,5 m² | 9285000 Kč | Karta bytu |
| 7F | Byt | 7.NP | 3+KK | V | 60,7 m² | 4,14 m² / - | 64,8 m² | 9825000 Kč | Karta bytu |
| 7G | Byt | 7.NP | 2+kk | V | 72,4 m² | 4,86 m² + 4,86 m² / - | 82,1 m² | 11280000 Kč | Karta bytu |
| 7H | Byt | 7.NP | 2+kk | V | 72,4 m² | 4,86 m² + 4,86 m² / - | 82,1 m² | 11275000 Kč | Karta bytu |
| 7B | Byt | 7.NP | 2+kk | Z | 76,2 m² | 2,86 m² + 2,86 m² / - | 81,9 m² | Rezervováno | Karta bytu |
| 7D | Byt | 7.NP | 1+kk | Z | 37,9 m² | 2,86 m² / - | 40,8 m² | Rezervováno | Karta bytu |
| 7J | Byt | 7.NP | 1+kk | V | 36,0 m² | 4,86 m² / - | 40,9 m² | Rezervováno | Karta bytu |
| 7K | Byt | 7.NP | 2+KK | V | 62,6 m² | 4,14 m² / - | 66,7 m² | Rezervováno | Karta bytu |
|
Číslo
|
Typ
|
Podlaží
|
Dispozice
|
Orientace
|
Plocha jednotky
|
Lodžie/Terasa
|
Celková prodejní plocha
|
Cena vč. DPH
|
|
|---|---|---|---|---|---|---|---|---|---|
| 8A | Byt | 8.NP | 3+1 | Z | 98,7 m² | - / - 29,39 m² | 128,0 m² | 16555000 Kč | Karta bytu |
| 8E | Byt | 8.NP | 3+KK | V | 95,9 m² | - / - 12,30 m² | 108,2 m² | 15750000 Kč | Karta bytu |
| 8F | Byt | 8.NP | 3+1 | V | 96,5 m² | - / - 12,30 m² | 108,8 m² | 16190000 Kč | Karta bytu |
| 8B | Byt | 8.NP | 3+KK | Z | 91,8 m² | - / - 30,53 m² | 122,4 m² | Rezervováno | Karta bytu |
| 8C | Byt | 8.NP | 3+1 | Z | 88,5 m² | - / - 25,99 m² | 114,5 m² | Rezervováno | Karta bytu |
| 8D | Byt | 8.NP | 3+1 | V | 98,0 m² | - / - 12,30 m² | 110,2 m² | Rezervováno | Karta bytu |
| Číslo | Podlaží | Dispozice | Variabilní dispozice | Orientace | Plocha jednotky | Lodžie/Terasa | Celková prodejní plocha | Cena vč. DPH | |
|---|---|---|---|---|---|---|---|---|---|
| 2E | 2.NP | 1+kk | Z | 37,4 m² | - / - / - | 40,2 m² | 5510000 Kč | Karta bytu | |
| 2F | 2.NP | 1+kk | Z | 37,4 m² | - / - / - | 40,2 m² | 5510000 Kč | Karta bytu | |
| 2G | 2.NP | 2+kk | Z | 55,3 m² | - / - / - | 60,8 m² | 7885000 Kč | Karta bytu | |
| 2H | 2.NP | 2+kk | V | 59,1 m² | - / - / 22,27 m² | 81,4 m² | 8505000 Kč | Karta bytu | |
| 2R | 2.NP | 2+KK | Z | 48,4 m² | - / - / 23,93 m² | 72,3 m² | 6895000 Kč | Karta bytu | |
| 3A | 3.NP | 3+kk | Z | 66,1 m² | - / - / - | 74,3 m² | 9750000 Kč | Karta bytu | |
| 3B | 3.NP | 1+kk | Z | 37,4 m² | - / - / - | 40,2 m² | 5690000 Kč | Karta bytu | |
| 3E | 3.NP | 1+kk | Z | 37,4 m² | - / - / - | 40,2 m² | 5690000 Kč | Karta bytu | |
| 3G | 3.NP | 2+kk | Z | 55,3 m² | - / - / - | 60,8 m² | 8220000 Kč | Karta bytu | |
| 3H | 3.NP | 2+kk | V | 59,1 m² | 4,14 m² / - / - | 63,2 m² | 8785000 Kč | Karta bytu | |
| 3P | 3.NP | 2+KK | V | 61,0 m² | 4,14 m² / - / - | 65,1 m² | 9065000 Kč | Karta bytu | |
| 3R | 3.NP | 2+KK | Z | 48,4 m² | - / - / - | 48,4 m² | 7125000 Kč | Karta bytu | |
| 3S | 3.NP | 2+KK | Z | 48,4 m² | - / - / - | 48,4 m² | 7195000 Kč | Karta bytu | |
| 4A | 4.NP | 3+kk | Z | 67,8 m² | - / - / - | 75,9 m² | 10230000 Kč | Karta bytu | |
| 4B | 4.NP | 1+kk | Z | 37,9 m² | - / - / - | 40,8 m² | 5910000 Kč | Karta bytu | |
| 4C | 4.NP | 1+kk | Z | 37,9 m² | - / - / - | 40,8 m² | 5910000 Kč | Karta bytu | |
| 4F | 4.NP | 1+kk | Z | 37,9 m² | - / - / - | 40,8 m² | 5910000 Kč | Karta bytu | |
| 4G | 4.NP | 2+kk | Z | 57,0 m² | - / - / - | 62,5 m² | 8670000 Kč | Karta bytu | |
| 4N | 4.NP | 1+kk | V | 36,0 m² | 2,43 m² / - / - | 38,4 m² | 5615000 Kč | Karta bytu | |
| 4P | 4.NP | 2+KK | V | 62,6 m² | 4,14 m² / - / - | 66,7 m² | 9520000 Kč | Karta bytu | |
| 4R | 4.NP | 2+KK | Z | 48,4 m² | - / - / - | 48,4 m² | 7300000 Kč | Karta bytu | |
| 4S | 4.NP | 2+KK | Z | 48,4 m² | - / - / - | 48,4 m² | 7365000 Kč | Karta bytu | |
| 5A | 5.NP | 3+kk | Z | 67,8 m² | - / - / - | 75,9 m² | 10480000 Kč | Karta bytu | |
| 5B | 5.NP | 1+kk | Z | 37,9 m² | - / - / - | 40,8 m² | 6050000 Kč | Karta bytu | |
| 5C | 5.NP | 1+kk | Z | 37,9 m² | - / - / - | 40,8 m² | 6050000 Kč | Karta bytu | |
| 5D | 5.NP | 1+kk | Z | 37,9 m² | - / - / - | 40,8 m² | 6050000 Kč | Karta bytu | |
| 5F | 5.NP | 1+kk | Z | 37,9 m² | - / - / - | 40,8 m² | 6050000 Kč | Karta bytu | |
| 5G | 5.NP | 2+kk | Z | 57,0 m² | - / - / - | 62,5 m² | 8875000 Kč | Karta bytu | |
| 5H | 5.NP | 3+KK | V | 60,7 m² | 4,14 m² / - / - | 64,8 m² | 9385000 Kč | Karta bytu | |
| 5L | 5.NP | 1+kk | V | 36,0 m² | 4,86 m² / - / - | 40,9 m² | 5745000 Kč | Karta bytu | |
| 6A | 6.NP | 3+kk | Z | 67,8 m² | - / - / - | 75,9 m² | 10720000 Kč | Karta bytu | |
| 6E | 6.NP | 1+kk | Z | 37,9 m² | - / - / - | 40,8 m² | 6090000 Kč | Karta bytu | |
| 6L | 6.NP | 1+kk | V | 36,0 m² | 4,86 m² / - / - | 40,9 m² | 5785000 Kč | Karta bytu | |
| 6N | 6.NP | 1+kk | V | 36,0 m² | 4,86 m² / - / - | 40,9 m² | 5785000 Kč | Karta bytu | |
| 6P | 6.NP | 2+KK | V | 62,6 m² | 4,14 m² / - / - | 66,7 m² | 9970000 Kč | Karta bytu | |
| 7A | 7.NP | 3+kk | Z | 67,8 m² | - / - / - | 75,9 m² | 10965000 Kč | Karta bytu | |
| 7C | 7.NP | 2+kk | Z | 76,2 m² | - 2,86 m² / - / - | 81,9 m² | 11875000 Kč | Karta bytu | |
| 7E | 7.NP | 2+kk | Z | 57,0 m² | - / - / - | 62,5 m² | 9285000 Kč | Karta bytu | |
| 7F | 7.NP | 3+KK | V | 60,7 m² | 4,14 m² / - / - | 64,8 m² | 9825000 Kč | Karta bytu | |
| 7G | 7.NP | 2+kk | V | 72,4 m² | 4,86 m² + 4,86 m² / - / - | 82,1 m² | 11280000 Kč | Karta bytu | |
| 7H | 7.NP | 2+kk | V | 72,4 m² | 4,86 m² + 4,86 m² / - / - | 82,1 m² | 11275000 Kč | Karta bytu | |
| 8A | 8.NP | 3+1 | Z | 98,7 m² | - / - 29,39 m² / - | 128,0 m² | 16555000 Kč | Karta bytu | |
| 8E | 8.NP | 3+KK | V | 95,9 m² | - / - 12,30 m² / - | 108,2 m² | 15750000 Kč | Karta bytu | |
| 8F | 8.NP | 3+1 | V | 96,5 m² | - / - 12,30 m² / - | 108,8 m² | 16190000 Kč | Karta bytu |